€1,350,000
Project
Plot: 23000m²
Paphos, Polis

Project in Polis For Sale - Ref. BC76170


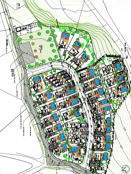
LARGE RESIDENTIAL LAND PROJECT FOR 36 HOUSES WITH PLANNING PERMIT AND NO VAT – DEVELOPMENT OPPORTUNITY IN LYSOS, PAPHOS

TITLE DEED FOR THE LAND

This residential land parcel of approximately 23,000 sqm is located in the village of Lysos, in the Paphos district. The property represents an excellent opportunity for a structured residential development project.

The land is primarily situated within residential planning zone H3, offering strong building parameters residential construction,  providing additional flexibility in planning and layout. The planning characteristics align with the surrounding area and support a well-organised residential development.

A planning permit for plot division is already in place, reducing development timelines and offering immediate potential for implementation. The property is offered with no VAT applicable, enhancing its overall investment appeal.

The size of the land, together with its zoning and planning status, allows for the development of a residential project of approximately 36 houses, such as the proposed Panorama Hills project. This makes it suitable for developers seeking a ready-to-advance project within the Paphos district.

Main points:

  • Total land area: approximately 23,000 sqm

  • Location: Lysos, Paphos district

  • Planning permit in place for plot division

  • Primary planning zone: H3 (93%)

    • Building density: 60%

    • Coverage: 35%

    • Maximum height: 8.3 meters

  • Secondary planning zone: G3 (7%)

    • Building density: 10%

    • Coverage: 10%

  • No VAT applicable

  • Development potential for approximately 36 residential houses

  • Suitable for a unified residential development project

Any photographs, markings, outlines, or other design on the photographs are indicative and for illustration purposes only. 

Lysos is 15 minutes drive from Latchi Harbor and 30 minutes drive from Pafos town. The village is built on the hillside and the views to the Akamas Peninsula are exceptional. It has traditional coffee shops, tavernas and a small hotel. The Pafos forest starts from the edge of the village and extends up to Troodos mountains. 

At an average altitude of 560 metres, the village of Lysos has existed since Medieval times with legends of the Medieval hero Digenis still told in the area. The village is located about 36 km northeast of Pafos, and can be reached by following the B07 route and then the E723.

The name of the village is believed to have its origins in the ancient Greek settlements in Asia Minor that settlers had brought to Cyprus, and an archaeological site in the area has unearthed tombs chiseled out of rock and geometrical vessels that further cement this theory. The name itself has archaic origins and originates from the Greek word "liono" as it was an industrial area for the melting of metals. 

The village is one of the largest in the Pafos region, with its territory extending to the peak of Pafos Forest where the rare bird of prey - Bonelli's eagle - can be spotted, along with the shy and rare Mouflon - an endemic species of wild sheep found exclusively on the island.

Sights of interest in the village include its series of old churches, including the main church dedicated to Panagia Chryseleousa - constructed around the end of the 15th century or the beginning of the 16th century. The church is believed to have originally been a Latin temple since its two doors are decorated with blazons.

Buy Cyprus LTD a leading and esteemed fully accredited Estate Agent, proudly holding registration number 1014 with the Cyprus Real Estate Agents Association and license number 477/E. With nearly three decades of unwavering commitment in the Cyprus and UK real estate markets, Buy Cyprus stands as the epitome of trustworthiness, offering top-tier expert services.

Paphosproperties has seamlessly integrated with Buy Cyprus LTD, becoming an integral part of our number one leading agency. Together, we share in this legacy of excellence, with our unwavering focus on exceeding customer expectations. We ensure that both buyers and sellers receive unparalleled care and dedication, drawing upon our profound understanding of the Cyprus Real Estate Market to provide objective and impartial advice to our esteemed clientele. With utmost transparency, we deliver honest and precise property information, empowering you to make well-informed decisions with absolute confidence.

Airport 45 minutes
Amenities: 5 Mins Drive
Beach: 10 min drive
Countryside Views
Full Title Deeds
Local Restaurants Walking Distance
No VAT
Town: 10 min drive

HAVE ANY QUESTIONS OR WANT TO ARRANGE A VIEWING?

PROPERTY INQUIRY

TRANSFER FEES

€50,600
IF BUYING AS AN INDIVIDUAL
€47,200
IF BUYING ON JOINT NAMES
Please note that the above calculations are an indication of your tax liability when buying a property in Cyprus for €1,350,000. The Cyprus Land Registry calculations may based on thier own property valuation price not reported sale price and therefore fees might differ to what is shown above.
THIS WEBSITE IS USING COOKIES
We use cookies to ensure that we give you the best experience on our website. If you continue using the site we assume that you are happy to receive all cookies on this site. Please make sure to read our cookies policy.